Печь для хлеба подовая Miwe CO 3.1208 2.0+DH190+DE140+H3 220+UG543+R155

В избранное
германия
  • Код товара281065
  • ПроизводительMiwe, Германия
  • Вольтаж (В)380 V
  • Мощность (Вт)28 200 Вт
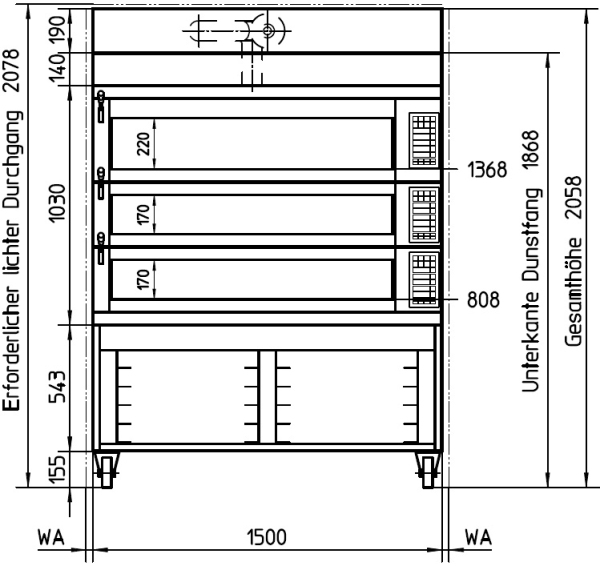
  • Габариты нетто (мм)1500x1210x2078
  • Количество камер (шт)3
  • Размер противня/гастроемкости580х780
  • Вес нетто (кг)770
  • Объём нетто (м3)3,771570
  • Гарантия1 год
  • Все характеристики
Задать вопрос

Печь подовая электрическая трёхкамерная для хлеба, серии Сondo, с компьютерным программным управлением ТС для каждой пекарной камеры, дверями со стеклом; оснащена вытяжным козырьком с вентилятором, промежуточной вставкой высотой 140 мм, подставкой высотой 543мм на 2х5 противней 580х780мм, роликами высотой 155мм.

Внутренние габариты камер: 1200х800х170мм (2 нижние) и 1200х800х220мм (1 верхняя). Максимальная рабочая температура: +320С. Площадь пода каждой пекарной камеры - 0,96м2. Общая площадь выпечки - 2,88м2. Мощность пароувлажнителя - 9000Вт. Высота вытяжки - 190мм. Внешние размеры подставки (без учёта высоты колёс) - 1500x1210x543мм.

Печь имеет каменные поды, армированные стекловолокном; 3 уровня мощности для экономии энергии, отложенного старта и быстрого нагрева, увеличенной мощности ТЭНы в зоне стекла, устройство пароувлажнения – отдельный парогенератор для каждой пекарной камеры, счётчик воды для каждого пода, блок предохранителей с подключением к каждому поду, электрический клапан отвода пара для каждого пода, функцию переворота стекла для лёгкой очистки.

Разъем USB располагается с фронтальной стороны. Модульная и многофункциональная пекарная печь с щадящей атмосферой выпечки (тепло излучения) обогревается электричеством. Универсальная печь выпекает различные хлебобулочные изделия: от восприимчивых легких кондитерских изделий до тяжелого крестьянского хлеба, а также может поддерживать продукцию теплой, разогревать и даже жарить.

Одновременное выпекание абсолютно разных продуктов возможно благодаря отдельным системам управления и пароувлажнителям в каждой пекарной камере. Герметичный, мощный пароувлажнитель для интенсивного пара и великолепной корки является отдельной частью конструкции с автономным обогревом, который предотвращает возможность температурных отклонений в камере.

Для достижения наилучших результатов выпечки управление верхним и нижним обогревом производится для каждого пода раздельно. Паронепроницаемые, ввинченные в боковую стенку электрические нагревательные стержни из высококачественной стали установлены прямо в камере. Печь изготовлена из высококачественной нержавеющей стали, поставляется в собранном виде.

Печь может использоваться в:

  • пекарнях,

  • кондитерских,

  • гостиницах,

  • в сфере гастрономии,

  • кейтеринга

  • или как мобильная хлебопекарная печь на различных мероприятиях.